KÉT LAKÁSOS VILLAÉPÜLET
VIRÁNYOS, BUDAPEST XII. | PREFARENZEN 2026 WINNER | BIG SEE 2026 WINNER
A Megrendelő igényessége hatja át a házat. Az értékesítésre szánt villa mindössze két lakást tartalmaz, melyek a helyszín és az épület nívójához méltó vásárló legnagyobb kényelmét szolgálják. Modern részletképzéssel megoldott, átszellőztetett tégla homlokzata visszafogott eleganciájával és harmonikus arányaival emelkedik ki mai lakóépületek fekete-fehér tömegéből.
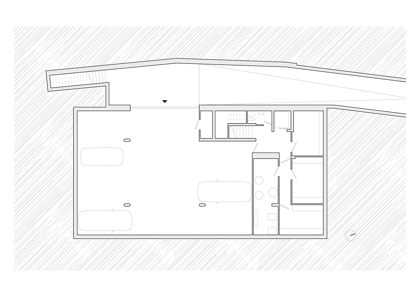
Tervezés: 2021 | Építés: 2022-2024 | Szintterület: 870 m2
Építészet: A Fiúk Építész Stúdió
Belsőépítészet: BRB Architect & Design Stúdió
Tájépítészet: BorókArt
Fotó: PREFA | Croce & Wir és Holló Hunor
Díjak, elismerések: PREFARENZEN 2026 | BIG SEE 2026
Publikáció: OCTOGON 2025/1. | OCTOGON.HU | ÉPÍTÉSZFÓRUM | PREFA AT | PREFA HUN
Video: YOUTUBE TDG | REELS A1